0%
TOP

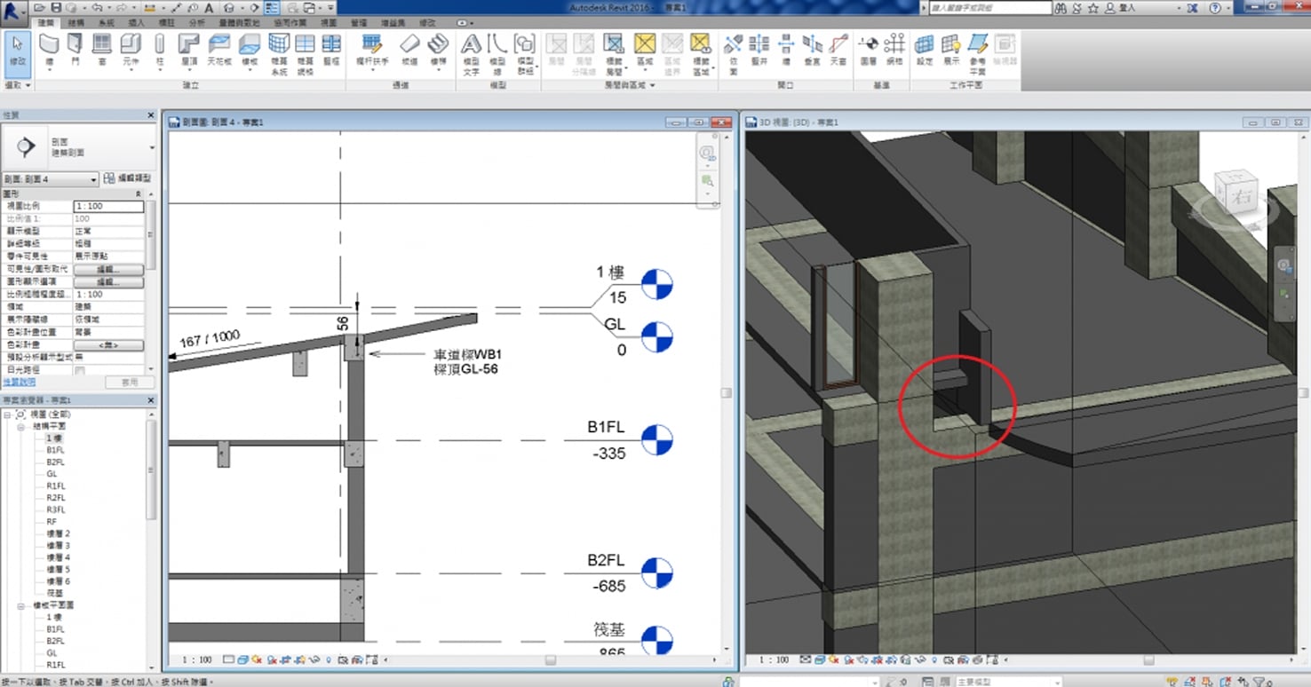
建築/結構/機電介面整合協調

在施工階段前必須先將建築、結構、機電、景觀圖...等進行清理圖面,現今還是以2D平面進行各圖說套匯整合及檢討較為廣泛,然而時代的進步建築物在設計外觀及結構行為日益複雜下,2D圖面的介面越來越不足以應付因此進而衍生出3D模型加速了解各介面之間的衝突點,BIM的功能則加強了資訊化整合系統讓3D模型不在只是具有觀賞的功能而是真正能運用在各工程階段,進而節省資源成本及掌握工程進度。

BACK
專業技術內容圖建築結構機電介面整合協調1
專業技術內容圖建築結構機電介面整合協調2

Related相關技術

VIEW MORE